4706, căn duplex trên tầng cao của Keangnam, đốn tim người đọc bởi không gian rộng thoáng và một thiết kế độc đáo.
Nằm trong tòa nhà cao tầng bậc nhất Việt Nam – Keangnam Landmark Tower, ngôi nhà duplex trên tầng 47 chiếm trọn “mặt tiền” hướng nam để ngắm nhìn toàn bộ phong cảnh thành phố lúc lên đèn.

Toàn cảnh các thiết kế độc lạ của căn nhà có hệ thống “hành lang bay”
Bắt đầu từ ý tưởng về một không gian industrial
Chủ nhân của căn nhà mong muốn không gian sống của mình tiện ích khi sử dụng nhưng phải mang lại cảm giác tự do, phóng khoáng. Cũng chính từ đó, KTS đã nảy ra ý tưởng thiết kế ngôi nhà theo phong cách: industrial không thuần túy.
Gọi là như vậy bởi toàn bộ căn nhà được sử dụng những chi tiết đắt mang màu “công nghiệp” như sắt mạ, bê tống đúc khối, xi măng láng cùng tông màu trầm nhưng lại không hoàn toàn “lạnh lùng” như phong cách industrialvốn thế. Trong không gian ấy, KTS đã tiết chế một phần màu sắc “công nghiệp” để thêm vào đó sự mềm mại của các vật liệu gỗ ốp trần, sàn, hệ thống đèn điện cách tân, các món đồ nội thất mang màu sắc đương đại.

Thiết kế của ngôi nhà được dung hòa từ hai phong cách industrial và đương đại

Căn nhà sở hữu mặt sàn rộng giúp KTS có nhiều “đất diễn” hơn
Mở ra một không gian sống hoàn toàn mới mẻ
Với diện tích sử dụng lên tới 350m2,căn nhàlà một thách thức, cũng chính là cơ hội đối với các KTS. Nó là thách thức bởi nếu không tạo nên tính liên kết tốt giữa các không gian thì căn nhà sẽ trở nên rời rạc, không còn thú vị. Nhưng ngược lại, nó cũng là cơ hội bởi KTS sẽ có nhiều “đất diễn” để áp dụng những phương cách độc lạ của riêng mình.

Tầng một được thiết kế thành không gian sinh hoạt chung
Trong thiết kế này, toàn bộ tầng một được dành cho không gian sinh hoạt chung. Phòng khách đặt ở vị trí trung tâm. Tích hợp bên trong nó là một chiếc bàn ăn dành cho 6 thành viên đặt cạnh cửa sổ lớn và một quầy bar dài, rộng làm bằng bê tông.


Bàn ăn dành cho 6 thành viên được đặt cạnh phòng bếp có tầm nhìn ra toàn thành phố

Không gian được sắp đặt thông minh, tiện lợi

Quầy bar làm từ bê tông chiếm trọn vị trí trung tâm của không gian sinh hoạt chung
Hai tầng nhà thông nhau, cửa kính lớn kịch trần tạo nên một phòng khách thoáng mát, sáng sủa. Tại đây, gia chủ có thể phóng tầm mắt ra khoảng không bên ngoài để ngắm nhìn toàn cảnh thành phố. Khu vực phụ như phòng bếp, kho, phòng đọc sách đều bao bọc xung quanh phòng khách. Và ở mỗi không gian ấy, ánh sáng, không khí đều chan hòa nhờ giải pháp thông gió thông minh.

Với cách thông tầng, phòng khách trở nên thoáng mát, sáng sủa hơn nhiều

Phòng đọc sách hấp dẫn với giá sách kịch trần và lưới nằm đọc sách

Tất cả mọi nơi trong căn nhà đều đón sáng vì được thiết kế thông minh

Được đặt tại góc trong cùng, nhìn ra cửa sổ lớn, phòng đọc sách yên tĩnh và riêng tư
Kết lại bằng những điểm nhấn đắt giá
Tầng hai hoàn toàn là không gian nghỉ ngơi. Ngoài một phòng ngủ chính, còn có hai phòng ngủ phụ và hai nhà vệ sinh. Ba phòng ngủ ở tầng hai nối với nhau bằng hành lang dài hình chữ Y.

“Hành lang bay” là một trong những điểm nhấn nổi bật trong thiết kế
Đây chính là điểm nhấn độc đáo đầu tiên trong thiết kế tổng thể của ngôi nhà. Không tận dụng tối đa mặt sàn tầng hai, KTS tạo nên hành lang chữ Y với chức năng kết nối. Nhưng nó vẫn đảm bảo được khoảng thở thông tầng cho khu vực sinh hoạt chung bên dưới. Và trên hết, “hành lang bay” còn tạo nên tính liên kết giữa những con người sống bên trong nó. Từ vị trí này, họ vẫn có thể dễ dàng quan sát mọi hoạt động đang diễn ra ở tầng dưới.

Không tận dụng hết diện tích sàn tầng hai, ngôi nhà có lối thiết kế thoáng đãng
Điểm độc đáo tiếp theo trong thiết kế của ngôi nhà duplex này là không gian phòng ngủ master. Không chỉ sở hữu vị trí đẹp nhìn ra bên ngoài, phòng ngủ chính còn có riêng cho mình một khu phòng tắm, thay đồ hiện đại.
Thay vì thiết kế phân chia không gian phòng tắm, phòng ngủ theo chiều ngang, tức là đặt trên cùng một mặt phẳng, thì các KTS của công trình lại chia đôi không gian ấy theo chiều dọc: bên trên tầng hai là nơi để nghỉ ngơi, bên dưới tầng một là phòng tắm, thay đồ riêng biệt. Một cầu thang sắt uốn được thiết kế độc lập bên trong phòng ngủ master để dẫn lối xuống khu vực phụ này.

Phòng ngủ master được thiết kế trẻ trung, độc đáo với các họa tiết industrial

Căn phòng thoáng đãng và có lối cầu thang dẫn xuống khu vực phòng vệ sinh, thay đồ dưới tầng một.

Bức ảnh này sẽ giúp bạn dễ dàng mường tượng ra sự sắp đặt của phòng ngủ master và khu vực phòng tắm của nó.


Một không gian nhỏ dành cho khu vực ngâm mình trong phòng tắm master

Trong thiết kế này, phòng tắm master được tích hợp cùng không gian thay đồ và trang điểm.
Căn nhà thiết kế thông minh với một vòng dịch chuyển tuần hoàn ngầm được hình thành bên trong nó. Đó là vòng dịch chuyển bất tận của ánh sáng, không khí, của chính hoạt động sống của con người. Mọi thứ cứ thế nối với nhau mà không biết được đâu là điểm khởi đầu, đâu là điểm kết thúc.

Một trong những phòng ngủ phụ trên tầng 2

Thiết kế đơn giản mang màu sắc đương đại

Nhà vệ sinh phụ cũng được thiết kế chất đến vậy


Những chi tiết như bồn rửa tay bằng đá khiến không gian thêm sang trọng, đẳng cấp
Sau khi hoàn thành, chủ nhân của căn hộ đã nhận xét không gian này hoàn toàn phù hợp với những buổi tiệc tùng. Nó phản ánh được tính trẻ và sự quảng giao của gia chủ. Đó là lý do vì sao KTS đặt cho căn nhà cái tên “Party House”.

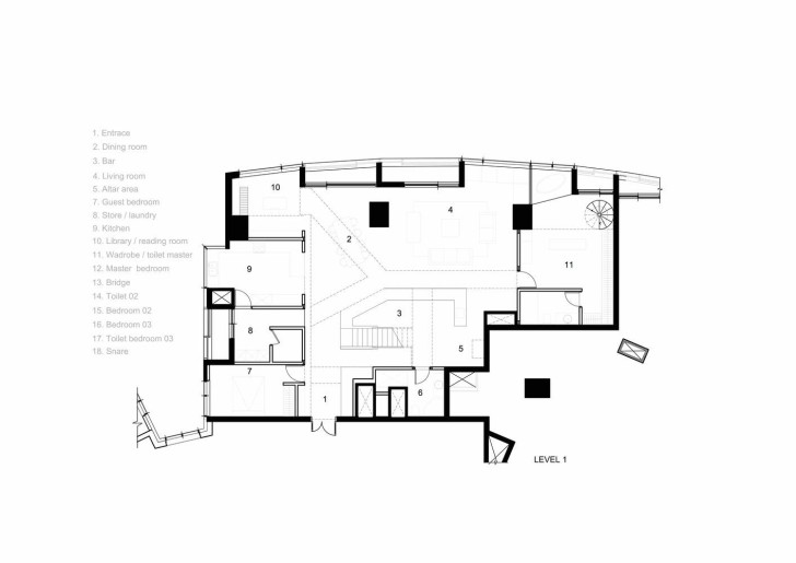
Thiết kế mặt bằng nhà

Mặt bằng tầng 1

Mặt bằng tầng 2

Mặt cắt dọc của toàn bộ căn nhà
Kiến trúc sư: Nghiêm Phong, Đào Thành
Địa chỉ: Keangnam, Hà Nội
Quản lý dự án: Nghiêm Phong
Diện tích sử dụng: 350m2
Năm hoàn thành: 2016
Chụp ảnh: Quang Tran
Bài viết: Phạm Anh
Nguồn: happynest.vn
Ý kiến bạn đọc
(0)