Ngôi nhà ở London với vật liệu xây dựng chủ yếu là gỗ, tạo cảm giác sang trọng, ấm cúng từ cái nhìn đầu tiên. Với cách lựa chọn nội thất và màu sơn, không gian trở nên rộng và thoáng. Ngôi nhà được bố trí và thiết kế nhiều góc nhỏ để đọc sách hoặc nghỉ ngơi, thư giãn.

Douglas House là ngôi nhà hiện đại, trẻ trung và ấm cúng ở London. Gỗ được sử dụng phổ biến ở tất cả các phòng. Theo lời đội ngũ kiến trúc sư, Douglas House thể hiện tình yêu của chủ nhà với chất liệu gỗ.

Nhà có 3 tầng, được xây dựng trên khoảng đất không quá rộng. Song với lối thiết kế mở, không gian vẫn ngập tràn ánh sáng tự nhiên.

Cánh cổng bằng gỗ tạo cảm giác gần gũi, thân thiện.

Tầng 1 là không gian sinh hoạt chung, các căn phòng không bị ngăn cách với nhau, gần như là một không gian trải dài duy nhất.

Điểm đặc biệt của ngôi nhà là có rất nhiều không gian có thể tận dụng cho mục đích đọc sách.

Bản thiết kế cũng đi theo xu hướng tối giản.


Một góc đọc sách yên tĩnh ở tầng 3.

Ô cửa sổ rộng ở tầng 3 cho phép thu vào tầm mắt khung cảnh bình yên, trong lành bên ngoài.

Toàn bộ các bước tường đều được sơn màu trắng, tạo cảm giác thoáng mát, rông và trẻ trung.

Gian bếp với đầy đủ tiện nghi.

Khu vực cầu thang có diện tích khá hẹp, tuy nhiên đội ngũ kiến trúc sư đã chọn phong cách thiết kế đơn giản, cùng với tay vịn màu trắng để tạo hiệu ứng tích cực về thị giác.

Tầng 2 gồm 2 phòng ngủ nhỏ và một phòng nhỏ để cất trữ đồ đạc.

Phòng tắm sang trọng.



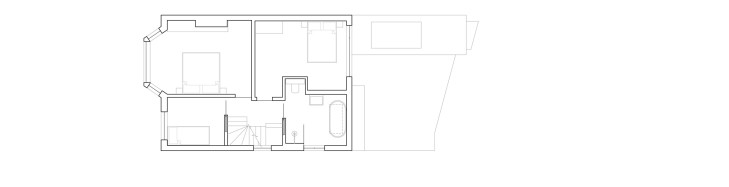
Bản thiết kế chi tiết.
Theo LÂM TÙNG/Người Đồng hành
Ý kiến bạn đọc
(0)