Vũng Tàu là một trong những thành phố du lịch biển nổi tiếng ở Việt Nam. Với sự phát triển nhanh chóng và có tính cạnh tranh cao trong ngành kinh tế dịch vụ, nhu cầu về nhà ở và căn hộ ở thành phố này cũng tăng lên nhanh chóng. Và H2 đã tìm ra giải pháp thiết kế thích hợp để xây dựng nên một tổ hợp tiny house và căn hộ thường. Với cái tên HQL Apartment – có thể xem đây như một nét mới lạ trong một rừng những căn hộ và nhà ở tại thành phố Vũng Tàu xinh đẹp….
THUYẾT MINH BỞI CÁC KTS:

Vũng Tàu là thành phố du lịch có vị trí đắc địa tiệm cận các tỉnh Đông Nam Bộ – khu vực kinh tế phát triển nhất Việt Nam. Các loại hình nghỉ dưỡng và du lịch ở đây phát triển mạnh. Với nhu cầu về nhà ở và căn hộ giữa một thị trường trẻ đầy năng động, cạnh tranh khốc liệt, chủ đầu tư đã tìm gặp H2.
Nhiệm vụ đặt ra là giải quyết bài toán về kinh tế, công năng và thẩm mỹ cho khu đất 100m2 tọa lạc tại 19 Hồ Quý Ly, phường Thắng Tam, thành phố Vũng Tàu, tỉnh Bà Rịa – Vũng Tàu.
Bài toán kinh tế:
•Bố trí không gian gọn gàng, vừa phải, tối đa hóa số căn hộ nhưng vẫn đảm bảo diện tích mỗi khu vực và mỗi phòng.

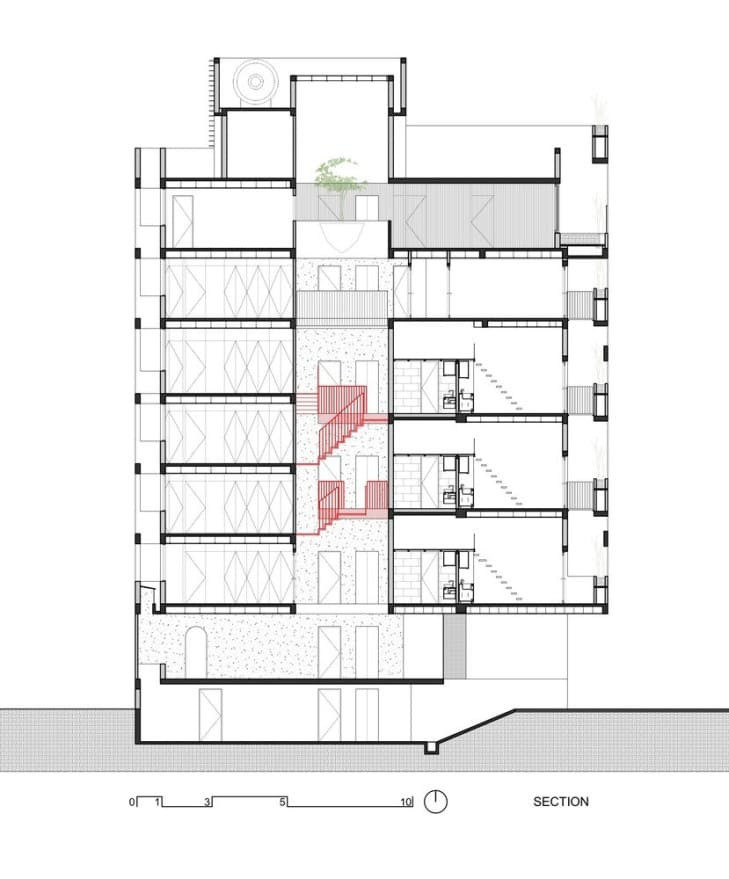
•Do quy định về chiều cao và tầng cao nên sử dụng lệch tầng và thay đổi chiều cao tầng. Mục đích là tăng số tầng sử dụng ở khối phía sau, khối phía trước bố trí gác xép để tăng diện tích sử dụng của căn hộ.
Bài toán công năng:
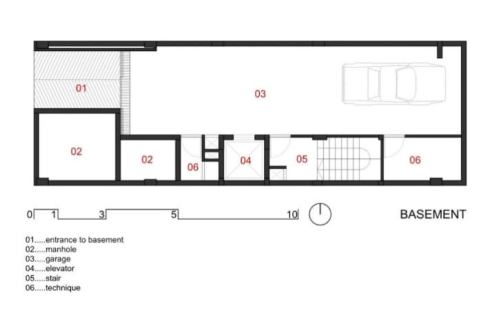
•Tầng hầm dành cho bãi đậu xe và kỹ thuật.

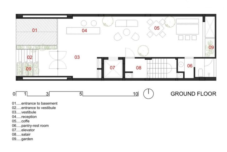
•Tầng trệt là khu vực sảnh kết hợp dịch vụ tiện ích của tòa nhà.

•Các tầng trên (tầng 2 đến tầng 5) bố trí các căn hộ trong đó:
+ Phần trước là căn hộ tiny house: khu vệ sinh, nhà bếp, phòng khách tích hợp nhỏ gọn bên dưới, phòng ngủ kết hợp nơi làm việc được bố trí trên gác.

+ Phần phía sau là căn hộ bình thường với phòng khách và phòng ngủ liên hoàn. Giữa 2 phòng có vách rèm linh động đóng mở 2 không gian linh hoạt. Nhà bếp và khu vệ sinh nhỏ gọn.
+ Phần trước và phần sau được thiết kế lệch tầng để tối ưu hóa diện tích cho bài toán kinh tế ở trên.

•Tầng 6 là penthouse gồm phòng khách, nhà bếp và 2 phòng ngủ, 2 khu vệ sinh. Phòng khách và nhà bếp xuyên suốt tạo không gian rộng thoáng, mở view nhìn tối đa ra 2 phía mặt tiền và giếng trời.

•Tối ưu hóa hệ thống tủ quần áo và kệ chứa đồ.
•Tất cả không gian được gắn kết bằng lõi thang máy và thang bộ tại vị trí trung tâm toà nhà. Kết hợp thêm vào đó là giếng trời thông gió và đón ánh sáng tự nhiên trên cao.

Trong không gian giếng trời có các thang sắt kết nối giữa căn tiny house và căn thường (do lệch tầng). Các thang này kết thúc bằng một bồn cây treo ở vị trí căn penthouse tạo điểm nhấn (spot light).

•Khối phía trước có hệ thống ban công sàn gỗ, treo lơ lửng. Đây là không gian cách nhiệt, thông gió, có thể sử dụng làm nơi nghỉ ngơi thư giãn.

Bài toán thẩm mỹ:
•Nhóm KTS thiết kế mặt tiền toà nhà là nơi để trồng cây xanh, ngoài ra còn là nơi giấu được hộp kỹ thuật của điều hoà.

•Vật liệu sử dụng cho căn penthouse là trần bê tông và tường gỗ. Tiền sảnh được thiết kế với gỗ và đá mài làm tăng tính thẩm mỹ và sự thân thiện cho không gian.
•Nội thất các căn hộ và penthouse đi theo tông màu gỗ, bìa gỗ tạo sự ấm cúng. Nội thất xen lẫn HDF trắng cho không gian nhỏ tạo cảm giác không gian rộng hơn.

•Công trình khai thác view nhìn tối đa từ 2 phần trước và sau nhà, nhìn về phía thành phố từ trên cao.

Xem thêm một số hình ảnh về công trình:









Thông tin công trình:
Tên công trình: HQL Apartment
Thiết kế: H2 Architects
Vị trí: Thành phố Vũng Tàu, Việt Nam
Kiến trúc sư: Trần Văn Huỳnh, Lê Hoàng Tâm, Nguyễn Thị Xuân Hải, Đỗ Trọng Nhân Kiệt, Nguyễn Đức Khánh
Diện tích: 100,0 m2
Năm hoàn thành: 2018
Ảnh: Quang Dam
Nguồn: kienviet.net
Ý kiến bạn đọc
(0)