Với việc tận dụng tối đa nguồn ánh sáng tự nhiên cùng những kết cấu kiến trúc mới lạ và các loại vật liệu thô, các kiến trúc sư của studio Nobbs Radford đã rất thành công trong việc tạo ra một tổ ấm độc đáo, vừa thanh lịch, hiện đại lại vừa rất tiện dụng.

Architects: Nobbs Radford Architects
Location: Sydney NSW, Australia
Architect In Charge: Sean Radford
Design Team: Sean Radford, Alison Nobbs
Assistant Architects: Trevor Black, Laura Bagnato
Structural Engineer: Partridge Structural
Interiors: Nobbs Radford Architects
Contractor: Yuncken Construction
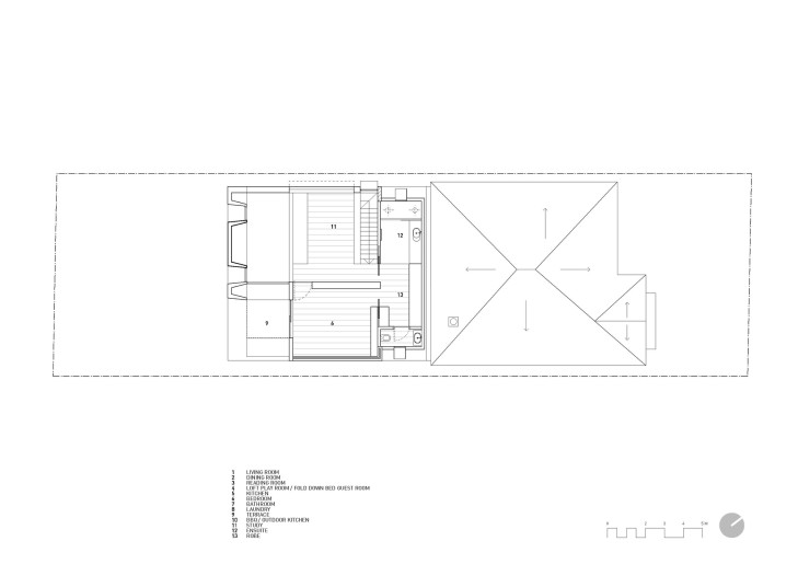
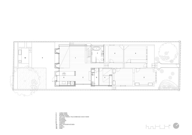
Area: 250 sqm
Year: 2013
Photographs: Courtesy of Nobbs Radford Architects





















Nguồn: ashui.com
Ý kiến bạn đọc
(0)